Naročnik: Dobravc transport d.o.o.
Status: izvedeno, 2020
Velikost: 1.330 m2
Lokacija: Domžale
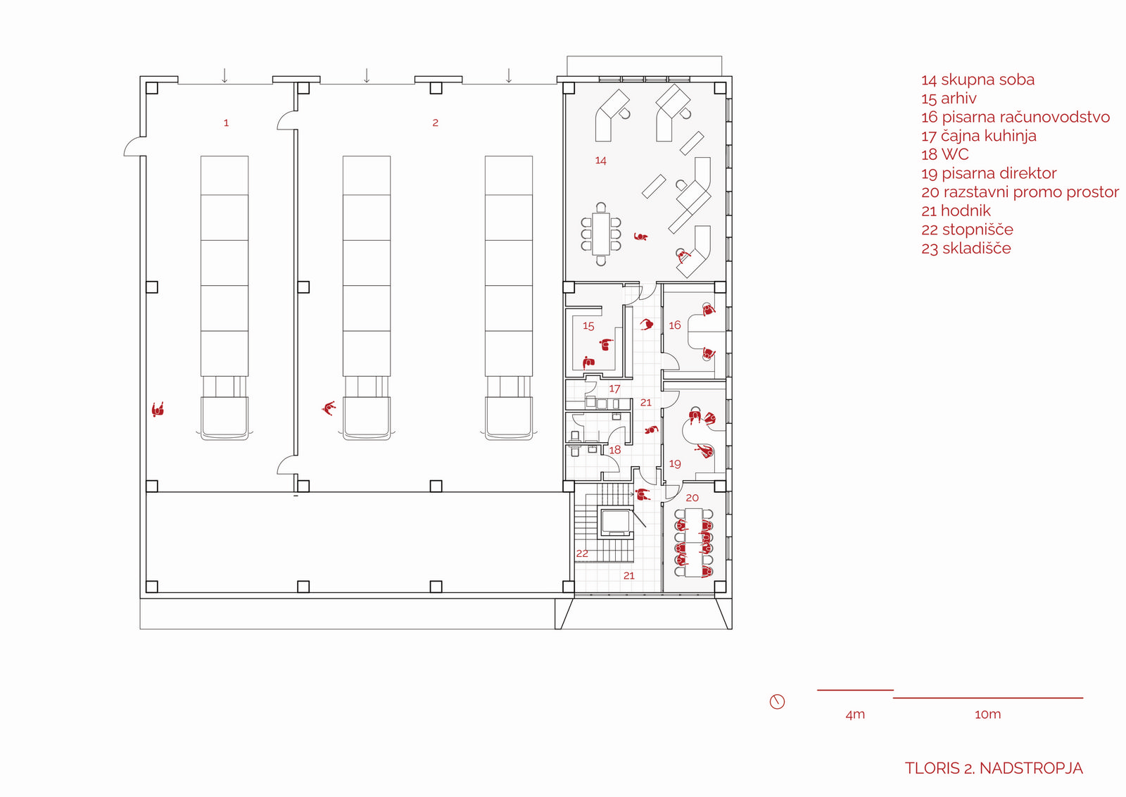
Za uspešno transportno in logistično podjetje Dobravc Transport d.o.o. smo zasnovali hibridni objekt, ki združuje poslovne, servisne in skladiščne prostore ter storitvene dejavnosti v parterju. Objekt je zasnovan kot prefabricirana betonska skeletna zgradba z odprtim osrednjim prostorom, ki je namenjen servisiranju transportnih vozil, poslovnim stolpičem na vzhodni strani in javnim parterjem, ki se odpira na ulico. V poslovnem delu so v dveh nadstropjih umeščene pisarne, v parterju pa so kavarna, frizerski salon in računalniško podjetje.
Fasadni ovoj stavbe je iz prefabriciranih betonskih elementov, krtačen teraco. Obešena fasada iz steklenih in vlaknocemenetnih plošč pa poudarja poslovni stolpič objekta ter javni parter stavbe. površinami objekta. Javni parter vabi obiskovalce skozi transparentno fasadno opno in s tem vzpostavlja nov javni prostor ob Tkalski ulici.
Naše storitve na projektu:














